Hi There! Is this Your First Time?
Did you know if you Register you have access to free search tools including the ability to save listings and property searches? Did you know that you can bypass the search altogether and have listings sent directly to your email address? Check out our how-to page for more info.
- Price$396,294
- Beds3
- Baths3
- Sq. Ft.1,706
- Acres0.07
- Built2025
17706 Broadleaf Loop, VENICE
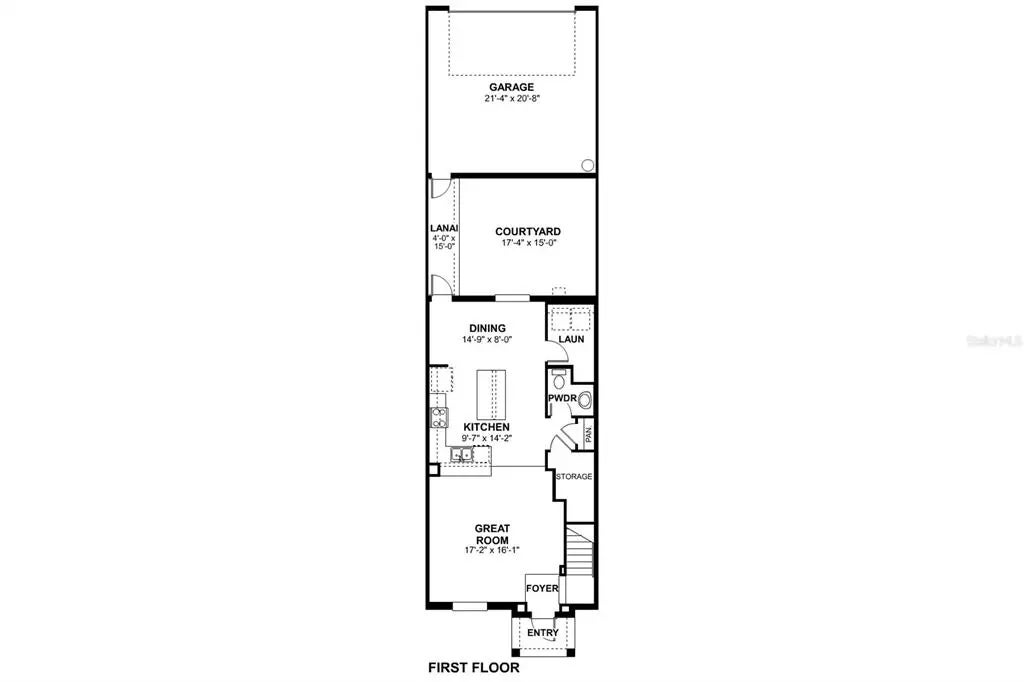
Under Construction. PRICED TO SELL! Welcome home to the Foxtail model, the latest Townhome built by M/I Homes. This beautiful home features 3 bedrooms, 2 1/2 bathrooms, an open concept great-room and kitchen and a 2-car garage. You'll enjoy the large owner's suite with walk-in closet as one of the highlights of this home. As you walk into the main living area, a spacious kitchen greets you with a large center island and additional counter space with quartz counter tops. The dining area provides a casual dining space, and a spacious great room is perfect for entertaining. Palmera at Wellen Park offers a wide array of resort-style amenities anchored by a stunning, coastal-inspired clubhouse including Golf Simulator, Fitness Center, Pickleball, Resort-Style Pool & Lap Lanes, Splash Pad, Playground, Fireside Lounge, Clubhouse, Gathering Lawn, and On-Site Dining. Visit us today! *Photos show pictures of a previous model, not all features are the same.
Essential Information
- MLS® #R4909983
- Price$396,294
- Bedrooms3
- Bathrooms3.00
- Full Baths2
- Half Baths1
- Square Footage1,706
- Acres0.07
- Year Built2025
- TypeResidential
- Sub-TypeTownhouse
- StatusActive
Amenities
- AmenitiesClubhouse, Fitness Center, Pickleball Court(s), Playground, Pool
- # of Garages2
- ViewTrees/Woods
Exterior
- Exterior FeaturesIrrigation System
- RoofTile
- FoundationSlab
Community Information
- Address17706 Broadleaf Loop
- AreaVenice
- SubdivisionPALMERA AT WELLEN PARK
- CityVENICE
- CountySarasota
- StateFL
- Zip Code34293
Interior
- Interior FeaturesHigh Ceilings, Open Floorplan, PrimaryBedroom Upstairs, Stone Counters, Walk-In Closet(s)
- AppliancesDishwasher, Microwave, Range
- HeatingElectric
- CoolingCentral Air
- # of Stories2
Additional Information
- Date ListedSeptember 26th, 2025
- Days on Market85
Listing information courtesy of M/i Homes Swfl, Llc.
All listing information is deemed reliable but not guaranteed and should be independently verified through personal inspection by appropriate professionals. Listings displayed on this website may be subject to prior sale or removal from sale; availability of any listing should always be independently verified.
Listing information is provided for consumer personal, non-commercial use, solely to identify potential properties for potential purchase; all other use is strictly prohibited and may violate relevant federal and state law.
Listing data comes from My Florida Regional MLS DBA Stellar MLS.
Listing information last updated on December 21st, 2025 at 3:28pm CST.















