Hi There! Is this Your First Time?
Did you know if you Register you have access to free search tools including the ability to save listings and property searches? Did you know that you can bypass the search altogether and have listings sent directly to your email address? Check out our how-to page for more info.
- Price$725,000
- Beds3
- Baths2
- Sq. Ft.1,764
- Acres0.19
- Built1954
420 Pensacola Road, VENICE
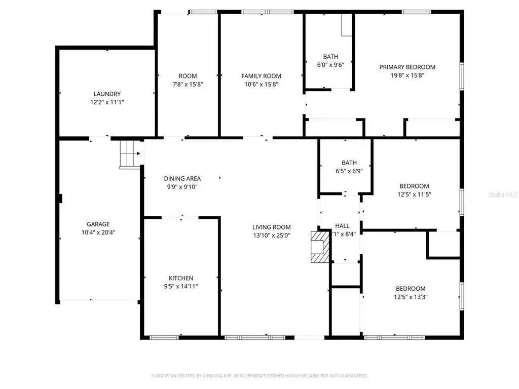
This home, built in 1954, is built on a crawl space and retains its original hardwood floors throughout. This 3-bedroom, 2-bath home also has a wood-burning fireplace in the living room to cozy up by in the winter. The home also boasts a Den/TV Room, a Library, and a Laundry Room with storage along with a one-car garage. There is a new Metal Roof from May 2023, New HVAC from May 2025, new Hot Water Heater from August 2023, and new Insulation was installed after the original insulation was removed in 2017. The Kitchen has Pull-Out Slides, and a new Microwave from 2023. In addition to the new Insulation, the ducts were just inspected and cleaned in 2024 and a new sprinkler well pump was installed in 2022. There are Hurricane Shutters, Bahama Hurricane Shutters and New Hurricane Straps in the Attic. In addition, there are also new Gutters, new Interior Doors, and a new Surge Protector on the HVAC System. To top it all off the home is coming Turn-Key Partially Furnished! Don't miss this opportunity to own an original Mid-Century Modern Home within the Historic District of the City of Venice and directly across the street from Blalock Park. Bike or walk to downtown or the beach!!
Essential Information
- MLS® #N6141639
- Price$725,000
- Bedrooms3
- Bathrooms2.00
- Full Baths2
- Square Footage1,764
- Acres0.19
- Year Built1954
- TypeResidential
- Sub-TypeSingle Family Residence
- StyleMid-Century Modern
- StatusPending
Amenities
- ParkingCurb Parking, Driveway, Garage Door Opener
- # of Garages1
- ViewGarden, Park/Greenbelt
Exterior
- Exterior FeaturesHurricane Shutters, Irrigation System, Private Mailbox, Rain Gutters, Sidewalk, Sprinkler Metered
- Lot DescriptionHistoric District, City Lot, Level, Near Golf Course, Near Marina, Near Public Transit, Sidewalk
- RoofMetal
- FoundationCrawlspace
Additional Information
- Date ListedNovember 24th, 2025
- Days on Market102
- ZoningRSF3
Community Information
- Address420 Pensacola Road
- AreaVenice
- SubdivisionVENEZIA PARK SEC OF VENICE
- CityVENICE
- CountySarasota
- StateFL
- Zip Code34285-2619
Interior
- Interior FeaturesBuilt-in Features, Ceiling Fan(s), Chair Rail, Primary Bedroom Main Floor, Solid Wood Cabinets, Split Bedroom, Stone Counters, Thermostat, Window Treatments
- AppliancesDishwasher, Disposal, Dryer, Electric Water Heater, Kitchen Reverse Osmosis System, Microwave, Range, Refrigerator, Washer, Water Filtration System
- HeatingCentral, Electric
- CoolingCentral Air
- FireplaceYes
- FireplacesInsert, Living Room, Masonry, Wood Burning
- # of Stories1
School Information
- ElementaryVenice Elementary
- MiddleVenice Area Middle
- HighVenice Senior High
Listing information courtesy of Exit King Realty.
All listing information is deemed reliable but not guaranteed and should be independently verified through personal inspection by appropriate professionals. Listings displayed on this website may be subject to prior sale or removal from sale; availability of any listing should always be independently verified.
Listing information is provided for consumer personal, non-commercial use, solely to identify potential properties for potential purchase; all other use is strictly prohibited and may violate relevant federal and state law.
Listing data comes from My Florida Regional MLS DBA Stellar MLS.
Listing information last updated on March 7th, 2026 at 12:08pm CST.







































