Hi There! Is this Your First Time?
Did you know if you Register you have access to free search tools including the ability to save listings and property searches? Did you know that you can bypass the search altogether and have listings sent directly to your email address? Check out our how-to page for more info.
- Price$1,200,000
- Beds4
- Baths4
- Sq. Ft.2,186
- Acres0.25
- Built1953
601 Menendez Street, VENICE
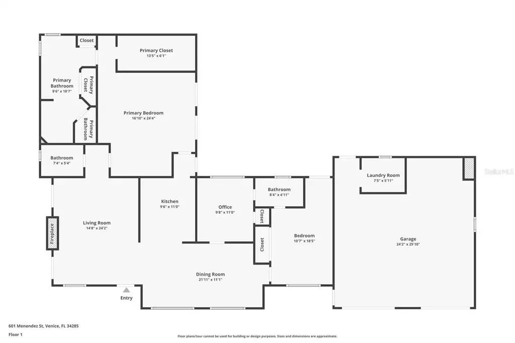
Under contract-accepting backup offers. Welcome to 601 Menendez Street — a beautifully maintained 4-bedroom, 3.5-bathroom mid-century modern residence nestled in the prestigious Venice Gulf View community on Venice Island. Originally built in 1953 and thoughtfully expanded over the years, this timeless home perfectly blends original island character with modern comfort and design. Set on a desirable corner lot, the property showcases a private courtyard-style pool surrounded by mature tropical landscaping, creating an idyllic retreat for relaxing or entertaining. Inside, oak flooring and clean architectural lines honor the home’s mid-century roots while creating a warm, sophisticated ambiance. The primary suite, a later addition, offers a peaceful escape complete with a soaking tub, separate walk-in shower, and spacious walk-in closet. The guest bath features a luxurious steam shower, continuing the home’s spa-inspired experience. In the dining area, a built-in dry bar enhances the home’s natural flow for entertaining, while the kitchen includes a reverse-osmosis filtration system serving both the sink and refrigerator, showcasing the thoughtful attention to detail throughout. The inviting living area centers around a propane fireplace, creating an elegant focal point for gathering. Outdoors, an easily accessible shower is perfect after a day at the beach or by the pool. The separate cabana suite, added in 2006, includes its own kitchenette, bedroom, and bath, making it ideal for extended family, guests, or a private home office. Additional features include impact-rated windows along the front of the home, partial impact-resistant exterior doors , and a two-car garage with generous storage. A tranquil east-side sitting area provides the perfect spot to enjoy morning coffee or evening cocktails surrounded by lush tropical foliage. Located just moments from downtown Venice, the South Jetty, and pristine Gulf beaches, 601 Menendez Street offers an exceptional combination of architectural charm, modern updates, and island living at its finest.
Essential Information
- MLS® #N6141385
- Price$1,200,000
- Bedrooms4
- Bathrooms4.00
- Full Baths3
- Half Baths1
- Square Footage2,186
- Acres0.25
- Year Built1953
- TypeResidential
- Sub-TypeSingle Family Residence
- StyleMid-Century Modern
- StatusPending
Amenities
- ParkingDriveway, Golf Cart Parking, Ground Level
- # of Garages2
- Has PoolYes
Exterior
- Exterior FeaturesIrrigation System, Lighting, Outdoor Shower, Private Mailbox, Rain Gutters
- Lot DescriptionCorner Lot, Landscaped
- RoofShingle
- FoundationSlab, Stem Wall
Additional Information
- Date ListedNovember 10th, 2025
- Days on Market40
- ZoningRSF2
Community Information
- Address601 Menendez Street
- AreaVenice
- SubdivisionVENICE GULF VIEW SEC OF
- CityVENICE
- CountySarasota
- StateFL
- Zip Code34285-2119
Interior
- Interior FeaturesBuilt-in Features, Ceiling Fan(s), Dry Bar, High Ceilings, Primary Bedroom Main Floor, Split Bedroom, Stone Counters, Thermostat
- AppliancesBar Fridge, Dishwasher, Disposal, Dryer, Electric Water Heater, Exhaust Fan, Kitchen Reverse Osmosis System, Microwave, Range, Refrigerator, Washer, Water Softener
- HeatingCentral, Electric
- CoolingCentral Air
- FireplaceYes
- FireplacesGas, Non Wood Burning
School Information
- ElementaryVenice Elementary
- MiddleVenice Area Middle
- HighVenice Senior High
Listing information courtesy of Keller Williams Island Life Real Estate.
All listing information is deemed reliable but not guaranteed and should be independently verified through personal inspection by appropriate professionals. Listings displayed on this website may be subject to prior sale or removal from sale; availability of any listing should always be independently verified.
Listing information is provided for consumer personal, non-commercial use, solely to identify potential properties for potential purchase; all other use is strictly prohibited and may violate relevant federal and state law.
Listing data comes from My Florida Regional MLS DBA Stellar MLS.
Listing information last updated on December 21st, 2025 at 8:43am CST.














































