Hi There! Is this Your First Time?
Did you know if you Register you have access to free search tools including the ability to save listings and property searches? Did you know that you can bypass the search altogether and have listings sent directly to your email address? Check out our how-to page for more info.
- Price$149,000
- Beds1
- Baths1
- Sq. Ft.633
- Built1976
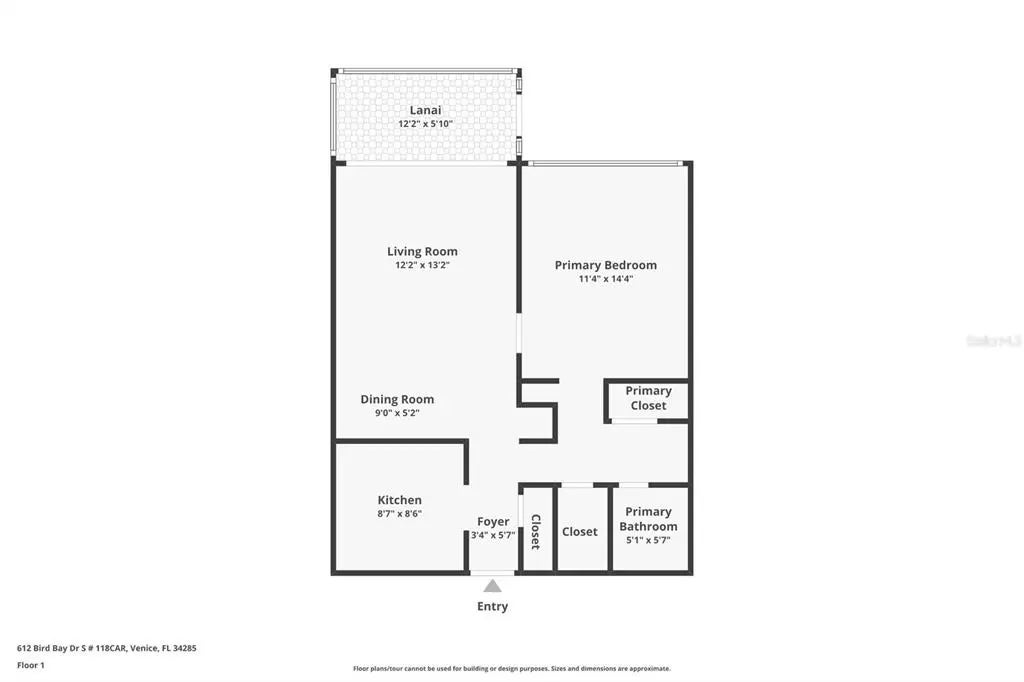
612 Bird Bay Drive S 118, VENICE
LOCATION! LOCATION! LOCATION! NOT FLOOD ZONE! Welcome to Bird Bay Village, one of Venice’s most sought-after active communities! This beautifully updated 1-bedroom, 1-bathroom condo is move-in ready and offers the perfect blend of comfort, convenience, and resort-style living. Adorable 1-Bedroom Condo in Bird Bay Village – Resort-Style Living! Community Highlights: Enjoy endless amenities including a fitness center, pickleball courts, lap pool, water aerobics, shuffleboard, bocce courts, and a vibrant calendar of planned activities such as art shows, monthly dances, parties, fashion shows, and more. All of this is just minutes from Downtown Venice and the pristine beaches of the Gulf of Mexico. Interior Features & Updates: Freshly painted with modern neutral tones (walls & ceilings), Waterproof LifeProof vinyl flooring throughout, Updated kitchen with new cabinets, countertops, backsplash, large single sink, new faucets, and all-new appliances, Drop ceiling removed in kitchen with new recessed lighting installed, New light fixtures & ceiling fans throughout, New bathroom vanity, sink, toilet, and faucets, Sliding glass doors to screened lanai with additional storage closet (perfect for bikes, beach gear & more!) All new electrical outlets, PUBLIC WATER AND PUBLIC SEWER! Mechanical Updates: Water heater replaced in 2023, A/C duct system cleaned in 2024, A/C unit installed in 2015, This condo is tastefully decorated and just waiting for your personal belongings. Whether you’re looking for a seasonal getaway, investment property, or year-round home, this Bird Bay gem checks all the boxes!
Essential Information
- MLS® #N6140519
- Price$149,000
- Bedrooms1
- Bathrooms1.00
- Full Baths1
- Square Footage633
- Year Built1976
- TypeResidential
- Sub-TypeCondominium
- StyleFlorida
- StatusActive
Amenities
- AmenitiesFitness Center, Laundry, Tennis Court(s)
- ParkingAssigned, Guest, None
Exterior
- Exterior FeaturesIrrigation System, Lighting, Rain Gutters, Sliding Doors, Storage, Tennis Court(s)
- Lot DescriptionCity Lot, Near Public Transit
- RoofShingle
- FoundationSlab
Additional Information
- Date ListedSeptember 20th, 2025
- Days on Market89
Community Information
- Address612 Bird Bay Drive S 118
- AreaVenice
- SubdivisionBIRD BAY VILLAGE
- CityVENICE
- CountySarasota
- StateFL
- Zip Code34285-6293
Interior
- Interior FeaturesCeiling Fan(s), Elevator, Window Treatments
- AppliancesDishwasher, Disposal, Electric Water Heater, Microwave, Range, Range Hood, Refrigerator
- HeatingCentral
- CoolingCentral Air
- # of Stories3
School Information
- ElementaryVenice Elementary
- MiddleVenice Area Middle
- HighVenice Senior High
Listing information courtesy of Re/max Palm Realty Of Venice.
All listing information is deemed reliable but not guaranteed and should be independently verified through personal inspection by appropriate professionals. Listings displayed on this website may be subject to prior sale or removal from sale; availability of any listing should always be independently verified.
Listing information is provided for consumer personal, non-commercial use, solely to identify potential properties for potential purchase; all other use is strictly prohibited and may violate relevant federal and state law.
Listing data comes from My Florida Regional MLS DBA Stellar MLS.
Listing information last updated on December 19th, 2025 at 12:59pm CST.







































