Hi There! Is this Your First Time?
Did you know if you Register you have access to free search tools including the ability to save listings and property searches? Did you know that you can bypass the search altogether and have listings sent directly to your email address? Check out our how-to page for more info.
- Price$215,000
- Beds2
- Baths3
- Sq. Ft.1,539
- Acres0.02
- Built2008
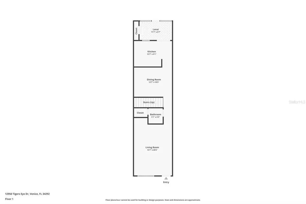
12950 Tigers Eye Drive, VENICE
HOME OF YOUR DREAM! MOTIVARED SELLER! LAKE VIEW! LOW HOA FEES! NOT FLOOD ZONE! PUBLIC WATER! PUBLIC SEWER! COMMUNITY POOL! This freshly updated townhome is conveniently located close to I-75, beaches, shopping, restaurants, recreation, and healthcare in the sought-after community of Stoneywood Cove. This unit embraces a wonderful cozy feel throughout the interior, with large windows and sliding doors that open up a picture-perfect design of your Lanai Lake view! It’s just what is needed for taking in the tranquil water views and fresh air. The townhouse is not in a flood zone and has a low HOA fee that offers the use of a beautifully maintained community pool.Well-maintained 2 bedroom, 2.5 bathroom, plus office/loft townhouse conveniently located close to I-75 in the sought-after community of Stonewood Cove. The first floor features the living room, dining room, kitchen, half bath, and screened lanai. Upstairs, you will find two large bedrooms, two full bathrooms, the office/loft area, and laundry. It is conveniently located near shopping, restaurants, downtown Wellen Park, downtown Venice, and the sand beaches of SW Florida. Call today for your private showing! This home has great potential as either a rental unit or an owner-occupied dwelling. Schedule your showing now to view your piece of paradise!
Essential Information
- MLS® #N6140419
- Price$215,000
- Bedrooms2
- Bathrooms3.00
- Full Baths2
- Half Baths1
- Square Footage1,539
- Acres0.02
- Year Built2008
- TypeResidential
- Sub-TypeTownhouse
- StatusActive
Amenities
- ParkingNone, Open
Exterior
- Exterior FeaturesSliding Doors
- Lot DescriptionSidewalk
- RoofShingle
- FoundationSlab
Additional Information
- Date ListedSeptember 9th, 2025
- Days on Market100
- ZoningRSF1
Community Information
- Address12950 Tigers Eye Drive
- AreaVenice
- SubdivisionSTONEYWOOD COVE
- CityVENICE
- CountySarasota
- StateFL
- Zip Code34292-3828
Interior
- Interior FeaturesCeiling Fan(s), Split Bedroom
- AppliancesDishwasher, Disposal, Dryer, Electric Water Heater, Freezer, Microwave, Range, Refrigerator, Washer
- HeatingCentral
- CoolingCentral Air
School Information
- ElementaryPine View School
- MiddleStudent Leadership Academy
- HighVenice Senior High
Listing information courtesy of Re/max Palm Realty Of Venice.
All listing information is deemed reliable but not guaranteed and should be independently verified through personal inspection by appropriate professionals. Listings displayed on this website may be subject to prior sale or removal from sale; availability of any listing should always be independently verified.
Listing information is provided for consumer personal, non-commercial use, solely to identify potential properties for potential purchase; all other use is strictly prohibited and may violate relevant federal and state law.
Listing data comes from My Florida Regional MLS DBA Stellar MLS.
Listing information last updated on December 19th, 2025 at 3:00pm CST.














































