Hi There! Is this Your First Time?
Did you know if you Register you have access to free search tools including the ability to save listings and property searches? Did you know that you can bypass the search altogether and have listings sent directly to your email address? Check out our how-to page for more info.
- Price$415,000
- Beds3
- Baths3
- Sq. Ft.2,176
- Acres0.23
- Built2006
9285 Galaxie Circle, PORT CHARLOTTE
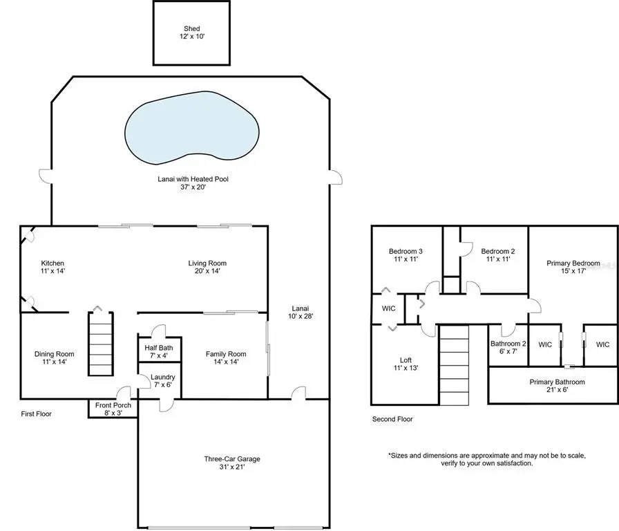
Dive into this beautifully designed two-story home where modern style meets everyday comfort, with a HEATED POOL perfect for year-round enjoyment. Thoughtfully laid out for both entertaining and relaxing, this home boasts luxury vinyl plank flooring throughout, contemporary finishes, and flexible rooms ideal for family, guests, or your dream floor plan. PLUS a generator hook-up and HURRICANE IMPACT WINDOWS & THREE CAR GARAGE! ***Step inside and appreciate the thoughtful layout and modern upgrades throughout, including the frosted glass-inlay sliding barn doors, custom blinds, plantation shutters, open floor plan, and luxury vinyl flooring spanning the entire home. The updated kitchen is ideal for everyday living and entertaining, featuring GRANITE countertops, a center island, a GAS STOVE, and a convenient serving window to the pool and screened lanai for seamless indoor-outdoor gatherings. Serve your guests in the formal dining room or enjoy a more casual meal at the dinette overlooking the pool. Impact-rated hurricane windows and doors provide safety and energy efficiency, while SMART-HOME features, including WiFi-enabled Alexa outlets, lighting, and appliances, deliver modern convenience throughout. ~~~The oversized primary suite features DUAL WALK-IN closets with abundant storage, while natural light enhances the airy feel and showcases the home’s modern finishes. The en-suite bathroom is a private retreat, featuring a relaxing garden tub, upgraded tile finishes, and a dual-sink vanity for added convenience. Beyond the primary suite, the additional bedrooms continue the home’s thoughtful design,offering versatile spaces that can adapt to your lifestyle. The den space provides FLEXIBILITY to be used as a loft, home office, playroom, FOURTH BEDROOM, or creative space tailored to your needs. ***Located in the desirable South Gulf Cove community in Port Charlotte, Florida, residents enjoy a laid-back coastal lifestyle with access to community parks, a boat ramp, and waterfront features that make this neighborhood especially appealing to outdoor enthusiasts. Close proximity to shopping, dining, golf courses, fishing, and Gulf beaches ensures you’re never far from the best Southwest Florida has to offer, while still enjoying the tranquility of a well-established residential community. Don’t miss your chance to make it yours—schedule your private showing today and start living the South Gulf Cove lifestyle.
Essential Information
- MLS® #D6145209
- Price$415,000
- Bedrooms3
- Bathrooms3.00
- Full Baths2
- Half Baths1
- Square Footage2,176
- Acres0.23
- Year Built2006
- TypeResidential
- Sub-TypeSingle Family Residence
- StyleFlorida
- StatusActive
Amenities
- ParkingCovered, Driveway, Garage Door Opener, Golf Cart Parking, Ground Level, Open
- # of Garages3
- ViewPool
- Has PoolYes
Exterior
- Exterior FeaturesAwning(s), Dog Run, Hurricane Shutters, Lighting, Rain Gutters, Sliding Doors, Storage
- Lot DescriptionFlood Insurance Required, FloodZone, In County, Landscaped, Level
- RoofShingle
- FoundationSlab
Additional Information
- Date ListedDecember 18th, 2025
- Days on Market103
- ZoningRSF3.5
Community Information
- Address9285 Galaxie Circle
- AreaPort Charlotte
- SubdivisionPORT CHARLOTTE SEC 071
- CityPORT CHARLOTTE
- CountyCharlotte
- StateFL
- Zip Code33981-4016
Interior
- Interior FeaturesBuilt-in Features, Ceiling Fan(s), Eating Space In Kitchen, High Ceilings, Kitchen/Family Room Combo, Open Floorplan, PrimaryBedroom Upstairs, Smart Home, Solid Surface Counters, Stone Counters, Thermostat, Walk-In Closet(s), Window Treatments
- AppliancesDishwasher, Disposal, Electric Water Heater, Microwave, Range, Refrigerator
- HeatingCentral, Electric
- CoolingCentral Air
- # of Stories2
School Information
- ElementaryMyakka River Elementary
- MiddleL.A. Ainger Middle
- HighLemon Bay High
Listing information courtesy of Kw Coastal Living.
All listing information is deemed reliable but not guaranteed and should be independently verified through personal inspection by appropriate professionals. Listings displayed on this website may be subject to prior sale or removal from sale; availability of any listing should always be independently verified.
Listing information is provided for consumer personal, non-commercial use, solely to identify potential properties for potential purchase; all other use is strictly prohibited and may violate relevant federal and state law.
Listing data comes from My Florida Regional MLS DBA Stellar MLS.
Listing information last updated on April 1st, 2026 at 3:37am CDT.



































































