Hi There! Is this Your First Time?
Did you know if you Register you have access to free search tools including the ability to save listings and property searches? Did you know that you can bypass the search altogether and have listings sent directly to your email address? Check out our how-to page for more info.
- Price$2,510,000
- Beds4
- Baths6
- Sq. Ft.2,694
- Acres0.22
- Built1982
301 S Gulf Boulevard 11 & 12, PLACIDA
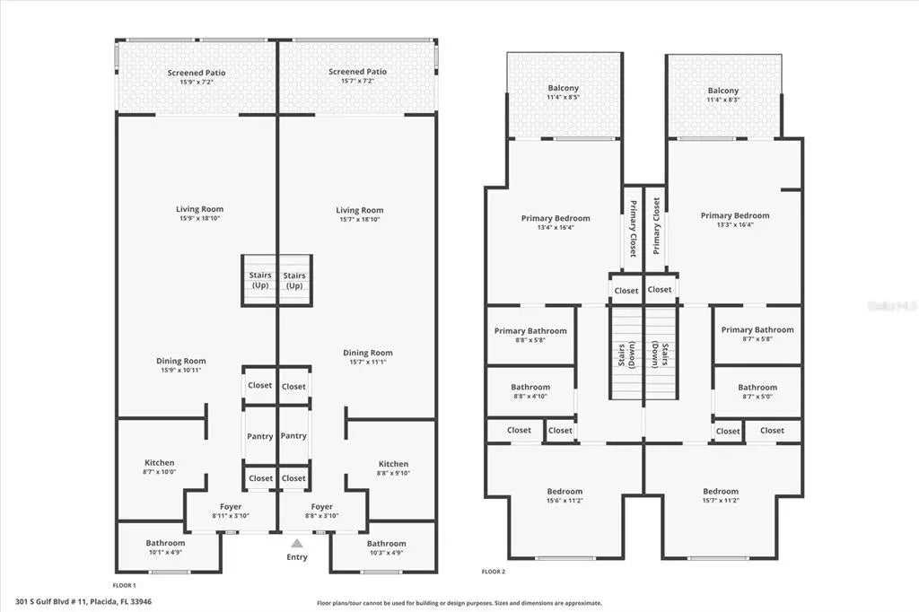
Beachfront Investment Opportunity on Don Pedro Island – Dual Renovated Units with Flexible Rental Potential! Discover a rare opportunity to own two fully renovated beachfront units in the Colony Don Pedro community—Units 11 & 12, offered as a single property. With a total of 4 bedrooms, 4 full baths, and 2 half baths, this versatile layout features an interior connecting door, allowing the property to function as: One large family retreat, Two separate 2BR/2.5BA vacation rentals OR A personal getaway + income-producing unit. Each unit features private screened and open lanais, plus shaded lounging areas below—perfect for outdoor entertaining or relaxing after a day on the beach. Every detail has been thoughtfully updated: newer roof, modern kitchens & baths, upgraded flooring, electric, plumbing, and HVAC systems. The seller is offering a $5,000 appliance credit per unit, allowing the buyer to select their preferred appliances. Enjoy miles of pristine sandy beaches just steps away—perfect for shelling, shark tooth hunting, and peaceful strolls. With breathtaking Gulf sunsets, world-class fishing, and the laid-back lifestyle of golf carts, bicycles, and boats, this island gem offers the true essence of “Old Florida” living. Community amenities include: Heated pool, Tennis court, Dockage with access to the Intracoastal and Gulf via just two bridges. Whether you’re looking for an income-generating rental, a family compound, or a flexible island escape, this property delivers unmatched potential and coastal charm. Don Pedro Island is accessible via a short car ferry ride, keeping it quiet, private, and unspoiled. Live, rent, or retreat—this is island life, your way.
Essential Information
- MLS® #D6144566
- Price$2,510,000
- Bedrooms4
- Bathrooms6.00
- Full Baths4
- Half Baths2
- Square Footage2,694
- Acres0.22
- Year Built1982
- TypeResidential
- Sub-TypeSingle Family Residence
- StyleCoastal, Cottage, Elevated, Key West
- StatusActive
Amenities
- ParkingGolf Cart Parking, Under Building
- ViewPool, Water
- Is WaterfrontYes
- WaterfrontBeach
Exterior
- Exterior FeaturesLighting, Sliding Doors, Tennis Court(s)
- Lot DescriptionCoastalConstruction Control Line, FloodZone, In County
- RoofShingle
- FoundationStilt/On Piling
Community Information
- Address301 S Gulf Boulevard 11 & 12
- AreaPlacida
- SubdivisionPALM ISLAND ESTATES UN 4
- CityPLACIDA
- CountyCharlotte
- StateFL
- Zip Code33946
Interior
- Interior FeaturesEating Space In Kitchen, Living Room/Dining Room Combo, Open Floorplan, Split Bedroom
- AppliancesElectric Water Heater
- HeatingCentral, Electric
- CoolingCentral Air
- # of Stories2
Additional Information
- Date ListedNovember 8th, 2025
- Days on Market92
- ZoningBBI
Listing information courtesy of Paradise Exclusive Inc.
All listing information is deemed reliable but not guaranteed and should be independently verified through personal inspection by appropriate professionals. Listings displayed on this website may be subject to prior sale or removal from sale; availability of any listing should always be independently verified.
Listing information is provided for consumer personal, non-commercial use, solely to identify potential properties for potential purchase; all other use is strictly prohibited and may violate relevant federal and state law.
Listing data comes from My Florida Regional MLS DBA Stellar MLS.
Listing information last updated on February 9th, 2026 at 8:54am CST.




























































