Hi There! Is this Your First Time?
Did you know if you Register you have access to free search tools including the ability to save listings and property searches? Did you know that you can bypass the search altogether and have listings sent directly to your email address? Check out our how-to page for more info.
- Price$320,000
- Beds3
- Baths2
- Sq. Ft.1,688
- Acres0.23
- Built2024
14455 Lillian Circle, PORT CHARLOTTE
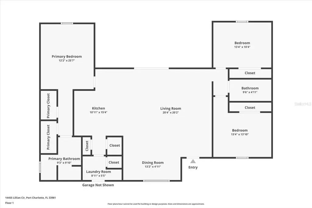
Under contract-accepting backup offers. SELLER MOTIVATED! Welcome to your dream home in the desirable South Gulf Cove community! Built in 2024, this beautifully crafted 3-bedroom, 2-bathroom residence offers 1,688 sq ft of open-concept living with thoughtful upgrades throughout. <br> <br> Step inside to find plank tile flooring flowing seamlessly through the entire home, complemented by high ceilings and abundant natural light. The spacious kitchen is a showstopper with granite countertops, a center island, and stainless steel appliances—perfect for entertaining or everyday living. <br> <br> The master suite is a true retreat, featuring dual walk-in closets and a luxurious en-suite bathroom with a walk-in shower. The guest bath offers a convenient tub/shower combo for added flexibility. <br> <br> Enjoy peace of mind with all impact-resistant windows and doors, plus the added touches of zebra blinds throughout, rain gutters, and a screened back porch ideal for enjoying Florida’s sunshine year-round or watching the summer showers while enjoying a cup of coffee. <br> <br> The 2-car garage includes an epoxy-coated floor and a hand rail, while the professionally landscaped yard boasts concrete curbing, a garden bed with irrigation, and beautiful curb appeal. <br> <br> Located in the South Gulf Cove community—a family-friendly, golf cart-friendly neighborhood with canals throughout, large sidewalks, and a boat ramp—you'll be just minutes from top-rated restaurants, pristine beaches, and world-class fishing in Boca Grande. <br> <br> Don’t miss your chance to own this stunning, move-in ready home in one of Southwest Florida’s most vibrant waterfront communities!
Essential Information
- MLS® #D6143516
- Price$320,000
- Bedrooms3
- Bathrooms2.00
- Full Baths2
- Square Footage1,688
- Acres0.23
- Year Built2024
- TypeResidential
- Sub-TypeSingle Family Residence
- StatusPending
Amenities
- ParkingCovered, Driveway, Garage Door Opener
- # of Garages2
- ViewTrees/Woods
- WaterfrontCanal Front
Exterior
- Exterior FeaturesIrrigation System, Private Mailbox, Rain Gutters, Sliding Doors
- Lot DescriptionLandscaped
- RoofShingle
- FoundationSlab
Additional Information
- Date ListedAugust 27th, 2025
- Days on Market55
- ZoningRSF3.5
Community Information
- Address14455 Lillian Circle
- AreaPort Charlotte
- SubdivisionPORT CHARLOTTE SEC 87
- CityPORT CHARLOTTE
- CountyCharlotte
- StateFL
- Zip Code33981-4530
Interior
- Interior FeaturesCeiling Fan(s), High Ceilings, Kitchen/Family Room Combo, Living Room/Dining Room Combo, Open Floorplan, Primary Bedroom Main Floor, Split Bedroom, Stone Counters, Thermostat, Walk-In Closet(s), Window Treatments
- AppliancesDishwasher, Dryer, Microwave, Range, Refrigerator, Washer
- HeatingCentral
- CoolingCentral Air
School Information
- ElementaryMyakka River Elementary
- MiddleL.A. Ainger Middle
- HighLemon Bay High
Listing information courtesy of Paradise Exclusive Inc.
All listing information is deemed reliable but not guaranteed and should be independently verified through personal inspection by appropriate professionals. Listings displayed on this website may be subject to prior sale or removal from sale; availability of any listing should always be independently verified.
Listing information is provided for consumer personal, non-commercial use, solely to identify potential properties for potential purchase; all other use is strictly prohibited and may violate relevant federal and state law.
Listing data comes from My Florida Regional MLS DBA Stellar MLS.
Listing information last updated on December 8th, 2025 at 6:13am CST.

























































