Hi There! Is this Your First Time?
Did you know if you Register you have access to free search tools including the ability to save listings and property searches? Did you know that you can bypass the search altogether and have listings sent directly to your email address? Check out our how-to page for more info.
- Price$479,900
- Beds3
- Baths3
- Sq. Ft.2,100
- Acres0.23
- Built2024
15116 Brainbridge Circle, PORT CHARLOTTE
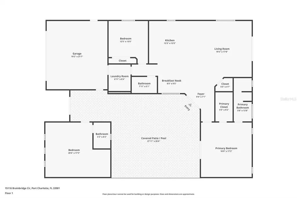
PRICE ADJUSTMENT! Opportunity awaits with this new, unfinished construction built in 2024 and ideally located in Port Charlotte, FL. This property offers a flexible 3-bedroom layout, including a private in-law suite with a full bathroom—perfect for multi-generational living or guest accommodations. The open floor plan is ready for your finishing touches, allowing you to design the interior to your personal taste. Kitchen cabinets are already in place, giving you the freedom to complete the kitchen exactly how you envision. A unique center courtyard enhances the home’s design and features the beginnings of an in-ground pool, creating the potential for a stunning private oasis. Situated on a canal with access to the river and the Gulf, this property combines customization potential with a desirable waterfront lifestyle. A rare chance to finish a nearly new home to your specifications in a prime Florida location. Property is being sold AS-IS. Construction is unfinished and will require completion; buyer to verify condition, permits, zoning, utilities, and suitability for intended use. No warranties or representations are made regarding the completion, condition, or code compliance of the structure.
Essential Information
- MLS® #C7519678
- Price$479,900
- Bedrooms3
- Bathrooms3.00
- Full Baths3
- Square Footage2,100
- Acres0.23
- Year Built2024
- TypeResidential
- Sub-TypeSingle Family Residence
- StatusActive
Amenities
- # of Garages2
- ViewWater
- Is WaterfrontYes
- WaterfrontCanal - Brackish, Canal - Saltwater
- Has PoolYes
Exterior
- Exterior FeaturesOther
- RoofShingle
- FoundationSlab
Community Information
- Address15116 Brainbridge Circle
- AreaPort Charlotte
- SubdivisionPORT CHARLOTTE SEC 082
- CityPORT CHARLOTTE
- CountyCharlotte
- StateFL
- Zip Code33981-5121
Interior
- Interior FeaturesOpen Floorplan, Primary Bedroom Main Floor
- AppliancesMicrowave
- HeatingCentral
- CoolingCentral Air
Additional Information
- Date ListedJanuary 5th, 2026
- Days on Market35
- ZoningRSF3.5
- RE / Bank OwnedYes
Listing information courtesy of The Landmark Group Swfl Llc.
All listing information is deemed reliable but not guaranteed and should be independently verified through personal inspection by appropriate professionals. Listings displayed on this website may be subject to prior sale or removal from sale; availability of any listing should always be independently verified.
Listing information is provided for consumer personal, non-commercial use, solely to identify potential properties for potential purchase; all other use is strictly prohibited and may violate relevant federal and state law.
Listing data comes from My Florida Regional MLS DBA Stellar MLS.
Listing information last updated on February 10th, 2026 at 5:07am CST.






































