Hi There! Is this Your First Time?
Did you know if you Register you have access to free search tools including the ability to save listings and property searches? Did you know that you can bypass the search altogether and have listings sent directly to your email address? Check out our how-to page for more info.
- Price$285,000
- Beds3
- Baths2
- Sq. Ft.1,421
- Acres0.18
- Built1978
1107 Seneca Road, VENICE
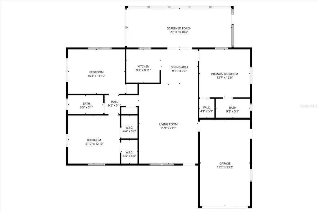
Welcome to this 3-bedroom, 2-bath home in the desirable South Venice neighborhood of Venice, FL — a community offering optional HOA access to boat and kayak/canoe launches, a ferry to private beach access, and neighborhood amenities including pickleball, community events, and scenic nature walks. The property includes a one-car garage, a 2021 roof replacement, a 2023 water heater, and an updated electrical panel (2023), offering peace of mind for the thoughtful buyer. The home offers 1,421 sq ft of comfortable living with an open galley-style kitchen featuring oak cabinetry, granite countertops, and stainless steel appliances that flows seamlessly into the dining and living areas. The thoughtfully laid-out split floor plan provides privacy for the primary suite, which includes a walk-in closet and ensuite bath with oak cabinetry, granite counters, and a walk-in shower. Guest bedrooms are generously sized, each with walk-in closets, and share a full hall bath with matching oak cabinetry, granite counters, and a tub/shower combo. Interior updates include fresh paint throughout, tile flooring in the living areas, and new carpeting in the bedrooms, giving the home a clean, updated feel. A hallway storage closet/pantry provides added convenience. Outside, both front and back yards are nicely landscaped and there’s a spacious screened lanai — perfect for enjoying Florida’s mild winters. Don’t miss this opportunity to own a well-maintained home in a community that blends Florida lifestyle with easy access to beach, boating, and neighborhood amenities.
Essential Information
- MLS® #C7518812
- Price$285,000
- Bedrooms3
- Bathrooms2.00
- Full Baths2
- Square Footage1,421
- Acres0.18
- Year Built1978
- TypeResidential
- Sub-TypeSingle Family Residence
- StatusActive
Amenities
- # of Garages1
Exterior
- Exterior FeaturesPrivate Yard
- RoofShingle
- FoundationSlab
Community Information
- Address1107 Seneca Road
- AreaVenice
- SubdivisionSOUTH VENICE
- CityVENICE
- CountySarasota
- StateFL
- Zip Code34293-6651
Interior
- Interior FeaturesCeiling Fan(s), Split Bedroom
- AppliancesDishwasher, Microwave, Range, Refrigerator
- HeatingCentral
- CoolingCentral Air
- # of Stories1
Additional Information
- Date ListedDecember 11th, 2025
- Days on Market85
- ZoningRSF3
Listing information courtesy of Keller Williams Realty Ft Myer.
All listing information is deemed reliable but not guaranteed and should be independently verified through personal inspection by appropriate professionals. Listings displayed on this website may be subject to prior sale or removal from sale; availability of any listing should always be independently verified.
Listing information is provided for consumer personal, non-commercial use, solely to identify potential properties for potential purchase; all other use is strictly prohibited and may violate relevant federal and state law.
Listing data comes from My Florida Regional MLS DBA Stellar MLS.
Listing information last updated on March 7th, 2026 at 9:53am CST.























