Hi There! Is this Your First Time?
Did you know if you Register you have access to free search tools including the ability to save listings and property searches? Did you know that you can bypass the search altogether and have listings sent directly to your email address? Check out our how-to page for more info.
- Price$4,500,000
- Beds5
- Baths5
- Sq. Ft.4,385
- Acres2.02
- Built1981
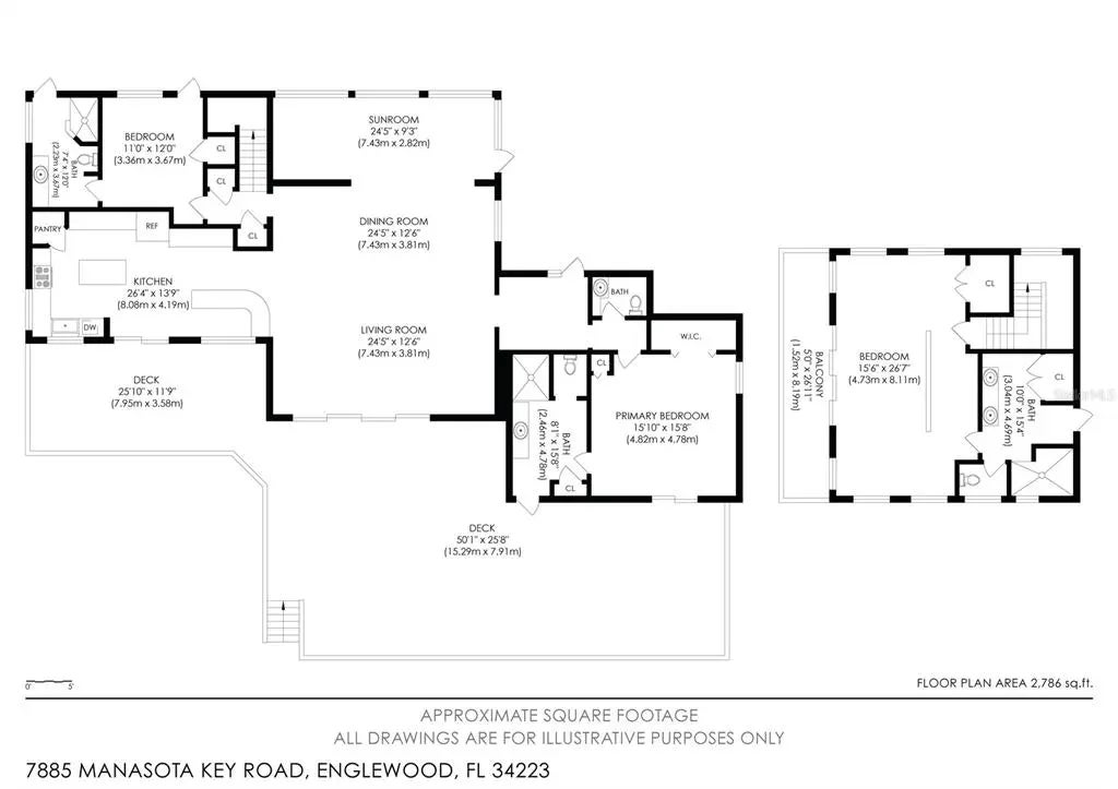
7885 Manasota Key Road, ENGLEWOOD
Welcome to 7885 Manasota Key Road, a rare waterfront estate offering panoramic water views, private beach access, and exceptional flexibility for multigenerational living or investment opportunities. Situated on more than two combined acres on beautiful Manasota Key, this extraordinary property delivers the space, privacy, and coastal lifestyle that is rarely available on Florida’s Gulf Coast. The main residence captures breathtaking panoramic views of the water and surrounding natural landscape, creating a stunning backdrop from the primary living areas. Large impact windows and open living spaces invite natural light throughout the home and provide the perfect setting for relaxing, entertaining, or simply enjoying the peaceful waterfront surroundings. What makes this property truly unique is the presence of three separate residential improvements on the property. In addition to the main home, two guest houses provide additional living space that is ideal for extended family, guests, or creating income producing rental opportunities. Outdoor living is designed for enjoying the Florida lifestyle. A private swimming pool provides the perfect place to relax after a day on the water or at the beach, while the outdoor fire pit creates a beautiful setting for evening gatherings and sunset views. Boating enthusiasts will appreciate the private boat dock which provides convenient access to the surrounding waterways. The property also includes deeded private beach access to the Gulf of Mexico, allowing owners and guests to easily enjoy the white sand beaches and spectacular sunsets that make Manasota Key so desirable. A spacious four car garage provides ample room for vehicles, recreational equipment, water toys, and additional storage. This exceptional property offers outstanding flexibility for a variety of uses including a private coastal estate, multigenerational family compound, seasonal retreat, or income producing investment. Both short term and long term rentals are allowed, creating significant potential for those looking to generate rental income while enjoying the property. Located on one of Southwest Florida’s most sought after barrier islands, 7885 Manasota Key Road offers a rare opportunity to own a waterfront estate with land, privacy, and multiple residences in a setting that captures the true essence of coastal living.
Essential Information
- MLS® #A4684954
- Price$4,500,000
- Bedrooms5
- Bathrooms5.00
- Full Baths5
- Square Footage4,385
- Acres2.02
- Year Built1981
- TypeResidential
- Sub-TypeSingle Family Residence
- StyleKey West
- StatusActive
Amenities
- ParkingBoat, Driveway, Garage Door Opener, Ground Level, Oversized
- # of Garages4
- ViewWater
- Is WaterfrontYes
- WaterfrontBay/Harbor
- Has PoolYes
Exterior
- Exterior FeaturesBalcony, Hurricane Shutters, Irrigation System, Sliding Doors, Storage
- Lot DescriptionIn County, Oversized Lot, Private
- RoofMetal
- FoundationPillar/Post/Pier
Additional Information
- Date ListedMarch 10th, 2026
- Days on Market14
Community Information
- Address7885 Manasota Key Road
- AreaEnglewood
- Subdivision0000 - NOT PART OF A SUBDIVISION
- CityENGLEWOOD
- CountySarasota
- StateFL
- Zip Code34223
Interior
- Interior FeaturesCathedral Ceiling(s), Ceiling Fan(s), Walk-In Closet(s), Wet Bar
- AppliancesBuilt-In Oven, Cooktop, Dishwasher, Disposal, Dryer, Microwave, Refrigerator, Washer
- HeatingCentral, Electric, Zoned
- CoolingCentral Air
School Information
- ElementaryEnglewood Elementary
- MiddleVenice Area Middle
- HighVenice Senior High
Listing information courtesy of Keller Williams Island Life Real Estate.
All listing information is deemed reliable but not guaranteed and should be independently verified through personal inspection by appropriate professionals. Listings displayed on this website may be subject to prior sale or removal from sale; availability of any listing should always be independently verified.
Listing information is provided for consumer personal, non-commercial use, solely to identify potential properties for potential purchase; all other use is strictly prohibited and may violate relevant federal and state law.
Listing data comes from My Florida Regional MLS DBA Stellar MLS.
Listing information last updated on March 25th, 2026 at 12:09pm CDT.

























































