Hi There! Is this Your First Time?
Did you know if you Register you have access to free search tools including the ability to save listings and property searches? Did you know that you can bypass the search altogether and have listings sent directly to your email address? Check out our how-to page for more info.
- Price$225,000
- Beds2
- Baths2
- Sq. Ft.1,373
- Acres0.18
- Built1974
2991 Odessa Road, VENICE
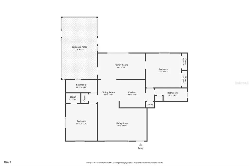
Great location and a great home in the heart of Venice. This home has great bones, a split bedroom floor plan, large fenced yard, impact windows, impact doors, newer kitchen cabinets with granite countertops, upgraded vanities and shower/tub upgrades are a few of the updates. with a little TLC make it yours. The AC needs to be replaced, but the roof still has some life at 15 years old. Some upgrades on the interior and a little work this will make a great home, rental or investment. This home is surrounded by services and amenities. Detwiler’s, Lowes, movie theaters, and restaurants are nearby. Enjoy first class health care 15 minutes away from the new Sarasota Memorial Health Systems Hospital. The home is located 10 minutes from Manasota Beach, a short bike ride or walk to Shamrock Nature Conservatory, and minutes from downtown Venice.
Essential Information
- MLS® #A4667748
- Price$225,000
- Bedrooms2
- Bathrooms2.00
- Full Baths2
- Square Footage1,373
- Acres0.18
- Year Built1974
- TypeResidential
- Sub-TypeSingle Family Residence
- StatusPending
Amenities
- # of Garages2
Exterior
- Exterior FeaturesSliding Doors
- RoofShingle
- FoundationBlock, Concrete Perimeter
Additional Information
- Date ListedOctober 8th, 2025
- Days on Market20
Community Information
- Address2991 Odessa Road
- AreaVenice
- SubdivisionSOUTH VENICE UNIT 58
- CityVENICE
- CountySarasota
- StateFL
- Zip Code34293
Interior
- Interior FeaturesCeiling Fan(s)
- AppliancesRange, Refrigerator
- HeatingCentral, Electric
- CoolingCentral Air
School Information
- ElementaryGarden Elementary
- MiddleVenice Area Middle
- HighVenice Senior High
Listing information courtesy of Keller Williams On The Water S.
All listing information is deemed reliable but not guaranteed and should be independently verified through personal inspection by appropriate professionals. Listings displayed on this website may be subject to prior sale or removal from sale; availability of any listing should always be independently verified.
Listing information is provided for consumer personal, non-commercial use, solely to identify potential properties for potential purchase; all other use is strictly prohibited and may violate relevant federal and state law.
Listing data comes from My Florida Regional MLS DBA Stellar MLS.
Listing information last updated on October 30th, 2025 at 4:26pm CDT.
























