Hi There! Is this Your First Time?
Did you know if you Register you have access to free search tools including the ability to save listings and property searches? Did you know that you can bypass the search altogether and have listings sent directly to your email address? Check out our how-to page for more info.
- Price$569,900
- Beds3
- Baths2
- Sq. Ft.2,137
- Acres0.20
- Built2004
604 Cockatoo Circle, VENICE
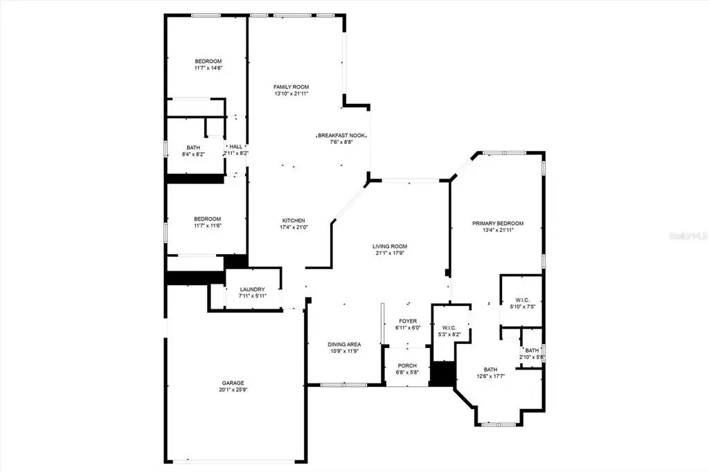
Reduced price, act fast! Experience the ultimate Florida lifestyle in the exclusive award winning gated community of Pelican Point Golf and Country Club. Just minutes from the quaint streets of downtown Venice as well as the laid back Venice beaches. This popular Sam Roger's “Lido” floor plan offers 2137 sq. ft. under air with 3 bedrooms and 2 full bathrooms. Enjoy peace of mind with the new tile roof (2025, $49k) and all new PGT impact windows throughout as well as motorized storm roll downs at the front entry and back lanai (2025, $41k). Top of the line HVAC installed in (2022, $12.8k). The interior features soaring ceilings with tray ceilings in the family room and master bedroom, crown molding and beautiful 24 inch tile with 5 inch baseboard recently installed through the entire home. The kitchen features granite countertops and backsplash, stainless steel appliances as well as solid wood cabinets with over and under lighting. The master and guest bathrooms have been tastefully updated. The home offers triple sliders that open fully to the paved and screened lanai. The exterior was just professionally landscaped in November 2024 and features river rock over new contractor grade weed block and drip line irrigation. There is also a pool prep package with electric and water already in place in the event you ever want a pool of your own now, or in the future. The low HOA fees include lawn care, high-speed internet, expanded cable TV, 24/7 gate guard security and a social membership. Golf cart friendly community! Take your golf cart to the included social membership features which include a huge heated pool, fitness center, tennis and pickle ball courts, full service restaurant and pub as well as a pro-shop. Pelican Point is a 27 hole semi-private championship golf course and a full practice facility. Over $165,000 spent on improvements and upgrades since 2022! Golf membership is optional and not required. Don’t miss this opportunity, schedule your showing today! Furnishings available separately.
Essential Information
- MLS® #A4659066
- Price$569,900
- Bedrooms3
- Bathrooms2.00
- Full Baths2
- Square Footage2,137
- Acres0.20
- Year Built2004
- TypeResidential
- Sub-TypeSingle Family Residence
- StatusActive
Amenities
- AmenitiesCable TV, Clubhouse, Fitness Center, Gated, Pickleball Court(s), Pool, Recreation Facilities, Tennis Court(s)
- ParkingGarage Door Opener
- # of Garages2
Exterior
- Exterior FeaturesCourtyard, Hurricane Shutters, Irrigation System, Outdoor Grill, Rain Gutters, Shade Shutter(s), Sliding Doors
- Lot DescriptionCul-De-Sac, Landscaped, Near Golf Course
- RoofTile
- FoundationSlab
Community Information
- Address604 Cockatoo Circle
- AreaVenice
- SubdivisionPELICAN POINTE GOLF & CNTRY CL
- CityVENICE
- CountySarasota
- StateFL
- Zip Code34285-6629
Interior
- Interior FeaturesCeiling Fan(s), Crown Molding, High Ceilings, Kitchen/Family Room Combo, Living Room/Dining Room Combo, Primary Bedroom Main Floor, Solid Surface Counters, Solid Wood Cabinets, Split Bedroom, Stone Counters, Thermostat, Tray Ceiling(s), Walk-In Closet(s), Window Treatments
- AppliancesDishwasher, Disposal, Dryer, Electric Water Heater, Microwave, Range, Refrigerator, Washer
- HeatingCentral, Electric, Heat Pump
- CoolingCentral Air
- # of Stories1
Additional Information
- Date ListedJuly 18th, 2025
- Days on Market111
- ZoningRSF3
Listing information courtesy of Realty Mark Associates.
All listing information is deemed reliable but not guaranteed and should be independently verified through personal inspection by appropriate professionals. Listings displayed on this website may be subject to prior sale or removal from sale; availability of any listing should always be independently verified.
Listing information is provided for consumer personal, non-commercial use, solely to identify potential properties for potential purchase; all other use is strictly prohibited and may violate relevant federal and state law.
Listing data comes from My Florida Regional MLS DBA Stellar MLS.
Listing information last updated on November 9th, 2025 at 2:09pm CST.








































