Hi There! Is this Your First Time?
Did you know if you Register you have access to free search tools including the ability to save listings and property searches? Did you know that you can bypass the search altogether and have listings sent directly to your email address? Check out our how-to page for more info.
- Price$330,000
- Beds3
- Baths2
- Sq. Ft.1,420
- Acres0.11
- Built2016
19962 Benissimo Drive, VENICE
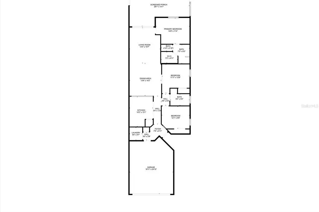
Now priced to move — an exceptional opportunity for today’s buyer. Effortless, move-in-ready living begins here. This beautifully maintained 3-bedroom, 2-bath villa offers a bright, welcoming atmosphere and thoughtful finishes throughout, making it an ideal choice for both seasonal and full-time living. From the moment you step inside, you’ll appreciate the open layout, abundant natural light, and timeless design details. The home features crown molding throughout, granite countertops, and updated light fixtures that add a polished, modern touch. A mix of engineered flooring and tile provides both style and easy maintenance, while ceiling fans in every room ensure comfort year-round. Designed for entertaining, the open-concept living space flows seamlessly and feels both comfortable and refined. Offered fully furnished, this home delivers turnkey convenience—simply bring your personal belongings and settle in. Whether you’re seeking a low-maintenance retreat or a place to call home year-round, this villa checks all the boxes. Located in the highly desirable Gran Paradiso, residents enjoy a luxury, resort-style lifestyle with a grand gated entrance, an impressive clubhouse, a resort-style pool, a state-of-the-art fitness center, tennis and pickleball courts, saunas and steam rooms, and scenic walking and biking paths. HOA dues remain affordable and include cable, internet, and lawn maintenance, allowing for truly hassle-free living. A home that combines comfort, convenience, and lifestyle — schedule your private showing today.
Essential Information
- MLS® #A4640868
- Price$330,000
- Bedrooms3
- Bathrooms2.00
- Full Baths2
- Square Footage1,420
- Acres0.11
- Year Built2016
- TypeResidential
- Sub-TypeVilla
- StatusActive
Amenities
- ParkingDriveway, Garage Door Opener
- # of Garages2
Exterior
- Exterior FeaturesHurricane Shutters, Irrigation System, Lighting, Rain Gutters, Sidewalk, Sliding Doors
- Lot DescriptionLandscaped, Sidewalk
- RoofTile
- FoundationSlab
Additional Information
- Date ListedFebruary 17th, 2025
- Days on Market383
- ZoningV
Community Information
- Address19962 Benissimo Drive
- AreaVenice
- SubdivisionGRAN PARADISO PH 1
- CityVENICE
- CountySarasota
- StateFL
- Zip Code34293-3477
Interior
- Interior FeaturesCeiling Fan(s), Crown Molding, Eating Space In Kitchen, High Ceilings, Living Room/Dining Room Combo, Open Floorplan, Solid Wood Cabinets, Split Bedroom, Stone Counters, Walk-In Closet(s), Window Treatments
- AppliancesCooktop, Dishwasher, Disposal, Dryer, Electric Water Heater, Exhaust Fan, Microwave, Range, Refrigerator, Washer
- HeatingCentral
- CoolingCentral Air
- # of Stories1
School Information
- ElementaryTaylor Ranch Elementary
- MiddleVenice Area Middle
- HighVenice Senior High
Listing information courtesy of Morgando Realty Services, Llc.
All listing information is deemed reliable but not guaranteed and should be independently verified through personal inspection by appropriate professionals. Listings displayed on this website may be subject to prior sale or removal from sale; availability of any listing should always be independently verified.
Listing information is provided for consumer personal, non-commercial use, solely to identify potential properties for potential purchase; all other use is strictly prohibited and may violate relevant federal and state law.
Listing data comes from My Florida Regional MLS DBA Stellar MLS.
Listing information last updated on March 8th, 2026 at 3:37am CDT.












































